Submit Your Info
Commercial Properties For Lease
1,150 SF Premium Turnkey Restaurant Space | Warehouse Arts District | St. Petersburg, FL
The property owner is actively seeking a visionary operator of a healthy food concept to establish a distinctive wellness-focused culinary destination within this unique converted warehouse building in St. Petersburg's thriving Warehouse Arts District.
UNPRECEDENTED OWNER INCENTIVES:
- Build-Out Contribution: Owner will participate in tenant improvements and collaborate on a custom build-out to bring your vision to life
- Tiered Rent Structure: Progressive 3-year rent schedule designed to support your business during the critical growth phase
- Potential Equity Investment: For the right concept and qualified operator, the owner will consider direct business investment to accelerate growth and ensure long-term success
PROPERTY SPECIFICATIONS
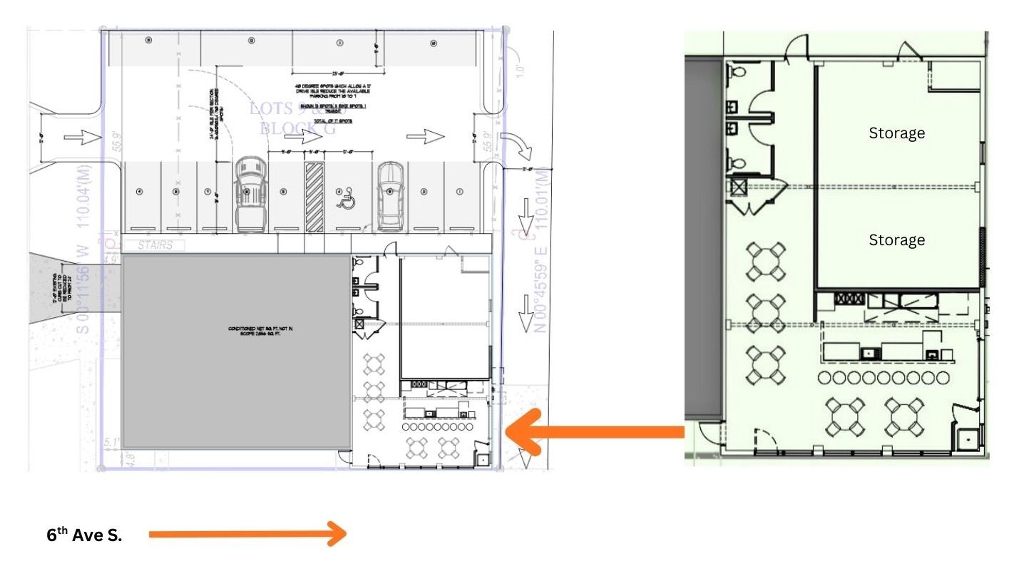
- 1,150 SF premium turnkey restaurant/café space
- 10-foot commercial hood system installed and operational
- Situated within a distinctive 5,772 SF converted warehouse building
- Character-rich industrial architecture with modern amenities
- Warehouse Arts District location – St. Petersburg's most dynamic and rapidly developing neighborhood
- Recent upzoning approval encouraging mixed-use development and culinary enterprises
MARKET ADVANTAGES
Award-Winning Culinary Market:
- Named "America's Best Food City" by Travel & Leisure
- Recognized as a "Next Great Food City" by Food & Wine
- 7+ million annual visitors to St. Petersburg
- Median household income: $73,118 – affluent, health-conscious demographic
- Thriving restaurant industry with a strong growth trajectory
IDEAL CONCEPTS
Farm-to-Table Restaurants | Wellness Cafés | Organic & Sustainable Dining | Superfood & Bowl Concepts | Functional Nutrition Cafés | Juice Bars with Full Kitchen
WHY THIS OPPORTUNITY IS UNIQUE
The owner seeks more than a tenant—they're seeking a strategic partner who shares their vision for creating a community gathering place that embodies St. Petersburg's progressive, health-conscious culture. With build-out assistance, flexible rent terms, and potential equity participation, you'll have the financial backing and creative freedom to establish a destination healthy food concept in one of Florida's most exciting and fastest-growing culinary markets.
This is not just another restaurant space. This is a partnership opportunity with an invested owner committed to your success.
NEXT STEPS
Qualified healthy food concept operators with proven track records are encouraged to inquire immediately. Interested parties should be prepared to discuss their concept, business plan, and vision for this unique space.
Address: 2655 6th Ave. S. Saint Petersburg, FL 33712
Size: 1,150 SF. total.
Layout: 1,150 SF. connected to 4,630 SF of warehouse and Art Studios
Built: 1951
Lease Terms
- Rent: $35 /SF NNN
- Length: 3-5 years
- Security Deposit: First, last, and 1 month rent security deposit
- Due At Signing: First, last, and 1 month rent security deposit
- Early Termination Option: 6 months' rent
Leasing Steps
Complete the form Below
Discuss your business needs and property needs
Determine your ideal floor layout, furniture and equipment placement
Our affordable leases will help you start growing your business in the perfect space

